
Lakásátalakítás_Közraktár utca
Valódi újjászületés eredménye ez a IX. kerületi lakásfelújítás. A tervezési helyszín egy századfordulós épületben található nagypolgári lakás, melynek meglévő alaprajzában még fellelhető az előző század nagyvonalúan teremtett polgári élettere. Külön bejárat a konyhán, abból nyíló tágas kamra, cselédszoba az udvari traktusban. Habár a jelenlegi, 120 m2-es lakás is a későbbi lakásfelosztások eredménye (az úri szoba és az ebédlő leválasztásra kerültek), karakteres, utcára néző térsora megmaradt. Szerencsés, hogy bár a megbízó befektetésként vásárolta az ingatlant, nem kívánta további kisebb lakásokra felosztani.
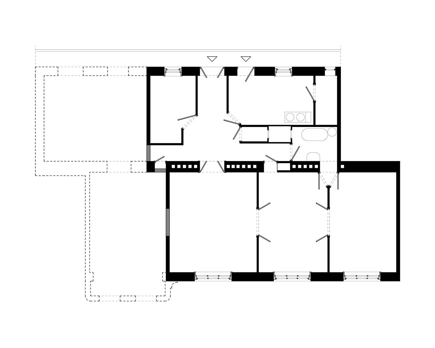
Célunk olyan belső terek tervezése volt, mely hűen tükrözi a korabeli terek szellemiségét, ugyanakkor funkcionálisan az átalakult lakhatási igényeket is kielégíti. A korhűség értékrendjét mi magunk állítottuk fel. A lakásban minden helyiség átalakult, ugyanakkor a kéttraktusos rendszerből fakadó sajátosságokat (udvar felé néző kisebb, valamint kiszolgáló terek és utcára néző nagy szobák) megőriztük.
A régi vonások rekonstrukció és az anyaghasználat révén élednek újjá. Számunkra fontos volt a csaphornyos parketta visszaépítése, a belső ajtók újragyártása a meglévők mintájára és az utcai traktus tengelyre szervezése. A külső nyílászárók gerébtokos jellege sajnos nem tudott megvalósulni, ugyanakkor a nyílászárók osztása, belső oldali keretezésük visszaállításra került. A lakás fő funkciói továbbra is az utcai traktusban sorakoznak, a sötét zónában, a lichthof körül szerveződnek a fürdők, míg két további hálószoba került a belső udvari traktusba. A terek arányai hasonlóak a régi terek arányaihoz, nem aprózódnak el az új helyiségek sem. A lakás fő helyiségeibe korhű ajtókon át jutunk, míg tapétaajtók mögé rejtettük a kiszolgáló helyiségeket. Jól megférnek egymás mellett a korabeli patinás és az egyszerűen új vonások.
A konyha és közösségi tér egy térben való elhelyezése a legszembetűnőbb változás. A tágas tér miatt két korábbi szobát összenyitottunk. A konyha új és markáns eleme a lakásnak. A sziget rövid oldala a bejárat tengelyére, míg a konyha hosszoldala az utcai térsorra szervezett, kialakítása szimmetrikus, diófa furnéros frontjai a polgári enteriőrt idézik, a sziget ezüst betétje a kortárs anyaghasználatot tükrözi. Az így kialakuló közösségi tér további bútorozása is a fő tengelyre szervezetten alakul.
Ez a végeredmény a megbízó megfelelő hozzáállása nélkül nem valósulhatott volna meg. A helyes szemlélet és a felújítás arányainak megtalálása vezethet egy nagypolgári lakás értékmegőrző megújulásához.
Célunk olyan belső terek tervezése volt, mely hűen tükrözi a korabeli terek szellemiségét, ugyanakkor funkcionálisan az átalakult lakhatási igényeket is kielégíti. A korhűség értékrendjét mi magunk állítottuk fel. A lakásban minden helyiség átalakult, ugyanakkor a kéttraktusos rendszerből fakadó sajátosságokat (udvar felé néző kisebb, valamint kiszolgáló terek és utcára néző nagy szobák) megőriztük.
A régi vonások rekonstrukció és az anyaghasználat révén élednek újjá. Számunkra fontos volt a csaphornyos parketta visszaépítése, a belső ajtók újragyártása a meglévők mintájára és az utcai traktus tengelyre szervezése. A külső nyílászárók gerébtokos jellege sajnos nem tudott megvalósulni, ugyanakkor a nyílászárók osztása, belső oldali keretezésük visszaállításra került. A lakás fő funkciói továbbra is az utcai traktusban sorakoznak, a sötét zónában, a lichthof körül szerveződnek a fürdők, míg két további hálószoba került a belső udvari traktusba. A terek arányai hasonlóak a régi terek arányaihoz, nem aprózódnak el az új helyiségek sem. A lakás fő helyiségeibe korhű ajtókon át jutunk, míg tapétaajtók mögé rejtettük a kiszolgáló helyiségeket. Jól megférnek egymás mellett a korabeli patinás és az egyszerűen új vonások.
A konyha és közösségi tér egy térben való elhelyezése a legszembetűnőbb változás. A tágas tér miatt két korábbi szobát összenyitottunk. A konyha új és markáns eleme a lakásnak. A sziget rövid oldala a bejárat tengelyére, míg a konyha hosszoldala az utcai térsorra szervezett, kialakítása szimmetrikus, diófa furnéros frontjai a polgári enteriőrt idézik, a sziget ezüst betétje a kortárs anyaghasználatot tükrözi. Az így kialakuló közösségi tér további bútorozása is a fő tengelyre szervezetten alakul.
Ez a végeredmény a megbízó megfelelő hozzáállása nélkül nem valósulhatott volna meg. A helyes szemlélet és a felújítás arányainak megtalálása vezethet egy nagypolgári lakás értékmegőrző megújulásához.













építészet/architecture: Batizi-Pócsi Gergő, Batizi-Pócsi Péter, Grócz Bence /batlab architects/_asztalos munkák/built-in furniture: Pannónia Bútorstúdió_székek/chairs: KOMOK_
helyszín/location: Budapest_projekt év/design and construction: 2020-2022_volumen/area: 120 nm_képek/photo: Juhász Norbert /juhasz norbert photography/
helyszín/location: Budapest_projekt év/design and construction: 2020-2022_volumen/area: 120 nm_képek/photo: Juhász Norbert /juhasz norbert photography/